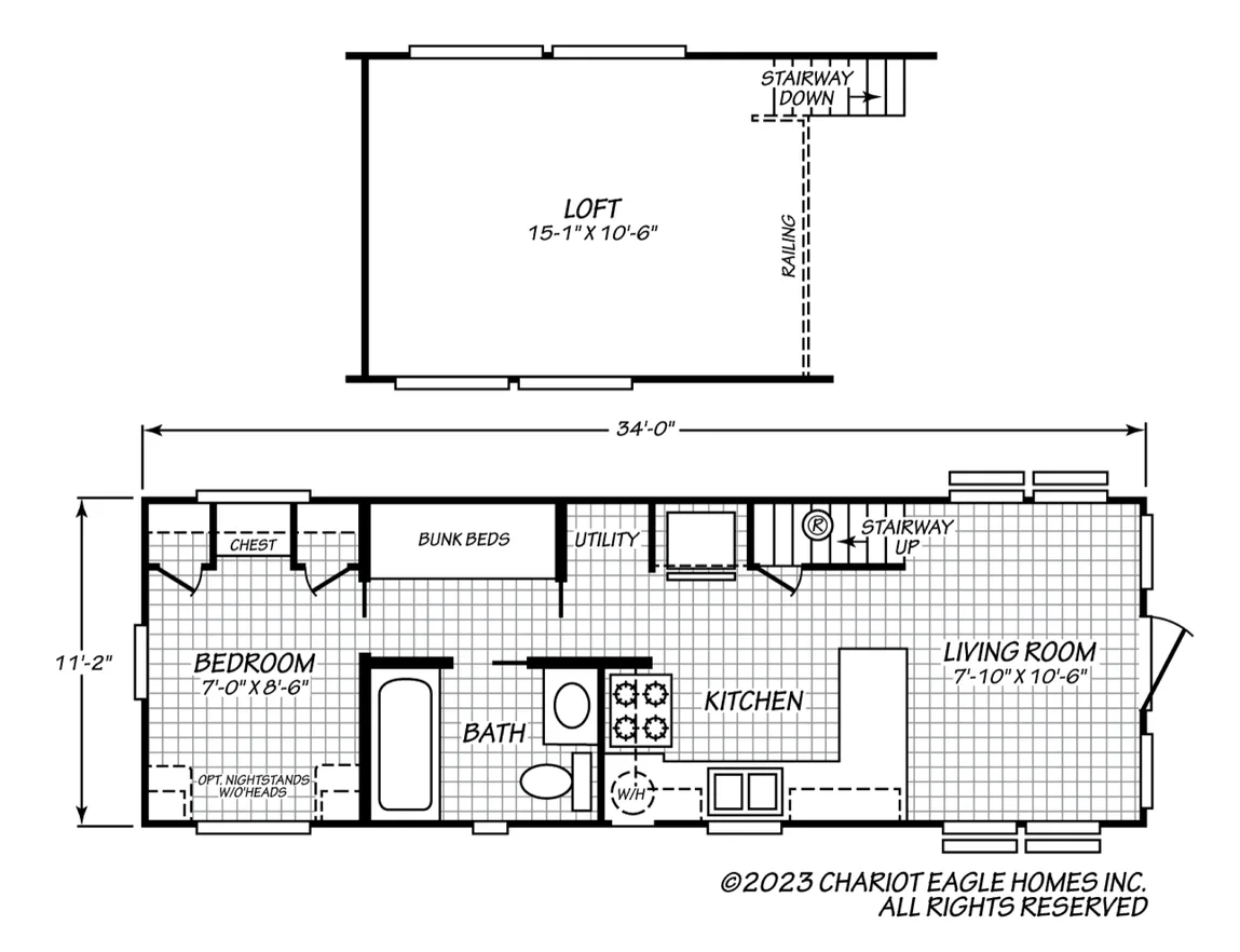
Eagle Loft 11341A
This model blends charm, comfort, and open-concept design. Its tall ceilings and stacked windows fill the home with natural light, while the upper loft provides flexible space for guests, storage, or a cozy retreat. From the well-equipped kitchen to the refined finishes and smart built-ins, the Eagle Loft 11341A offers the perfect balance of spaciousness and practicality.
Standard Features
Interior Features
• 5-panel interior passage & pocket doors
• Tape and textured walls with square-cased trim
• Choice of interior paint color (two-tone optional)
• 2” white faux blinds throughout (excludes stacked windows)
• Beau Flor lino flooring throughout
• 4” recessed LED lighting throughout
• Smoke detector and fire extinguisher
Kitchen Features
• Beko 30” stainless steel electric range (gas optional)
• Stainless steel refrigerator with icemaker
• Laminate countertops with self-edge
• Ceramic tile backsplash (one row per floorplan)
• Style cabinetry with shaker doors
• Soft-close drawers and cabinet doors
• Residential gooseneck kitchen faucet
• Stainless steel kitchen sink
• Cove molding on overhead cabinets
Bed & Bath Features
• Oval white drop-in lavatory sink
• Residential-style bathroom faucet
• Satin towel bar and tissue holder
• Egress bedroom window
• Laminate bathroom countertops
• Ceramic tile backsplash (one row)
• Residential shower diverter and trim
Exterior Features
• Vinyl siding with OSB wood and wrap
• Architectural shingled roof
• Exterior lights at each door
• Energy-efficient white vinyl sliding glass door
• Vinyl-framed Low-E windows
• Front overhang
• Exterior GFI receptacle
Mechanical Features
• Pre-wire for TV & phone (living room + bedroom)
• PEX waterlines with low-point drain
• UL-approved electrical devices
• Easy-touch rocker light switches
• Under-sink waterline shut-off valves
Construction Features
• 2” × 6” transverse floor joists (per floorplan)
• Detachable hitch
• Woven simplex underbelly
• 2” × 4” sidewalls, 16” O.C.
• R-11 fiberglass floor insulation
• R-11 fiberglass wall insulation
• R-19 fiberglass ceiling insulation
• Pre-engineered scissor trusses (16” O.C.)
• RVIA / ANSI 119.5 approved
Customize your
Want this model tailored to your style? Choose finishes, colors, accents, and optional upgrades to make your home feel uniquely yours. Our design form lets you explore available options and submit your preferences in minutes.
Featured Inventory
Homes Available Now
Loft Floor Plans
Discover More Loft Park Models

Eagle Loft 11341A
The Eagle Loft 11341A blends charm and function in a beautifully balanced layout. Its spacious loft adds versatility for guests or storage, while the vaulted ceilings and open living area create an airy, expansive feel. Thoughtful built-ins, a full-size kitchen, and refined finishes make this model an ideal retreat for comfortable, elevated living.

Eagle Loft 13291P
The Eagle Loft 13291P offers exceptional flexibility with two true bedrooms plus a generous loft for guests or extra storage. Bright interiors, tall ceilings, and a smooth living–kitchen flow create an inviting, modern atmosphere perfect for seasonal stays or extended living with family and friends.

Eagle Loft 11361Q
The Eagle Loft 11361Q combines warm, inviting interiors with the added versatility of a spacious loft. A cozy living room with fireplace, a full kitchen with pantry, and a smart layout make this model a flexible and charming option for both guests and extended stays.



